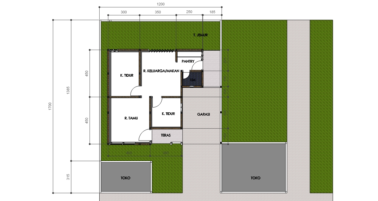
Ini gambar yang coba aku buat untuk seorang teman alumni krapyak di Pringsewu, Lampung. Mohon maaf mas An Mulia, karena gambar sketsa lokasi yang njenengan kirim gak begitu lengkap, jadi yaa..kira-kiranya gini deh,hasilnya....
Langganan:
Posting Komentar (Atom)
WARUNG KOPI
Jujur aja, ini pertama kalinya saya diminta nggambar warung kopi, jadi yaa...begini hasilnya he..he.. semoga anda ndak nyesel melihatnya wk...
-
Nhaa....kali ini aku mencoba memberikan step by step menggambar tank. Sebelumnya mohon maaf kalau postingku kebanyakan "boyish stuff...
-
Alhamdulillah, setelah sekian lama akhirnya aku bisa posting lagi. Ndak tau ini masuk kategori apa, tapi yang jelas ini adalah maket da...
-
Kali ini kita akan belajar cara menggambar kereta api uap, yang mungkin sudah jaraaaang banget kita lihat selain di museum atau di film Thom...



Tidak ada komentar:
Posting Komentar